Andrew Harrison

Director, Leasing
Retail

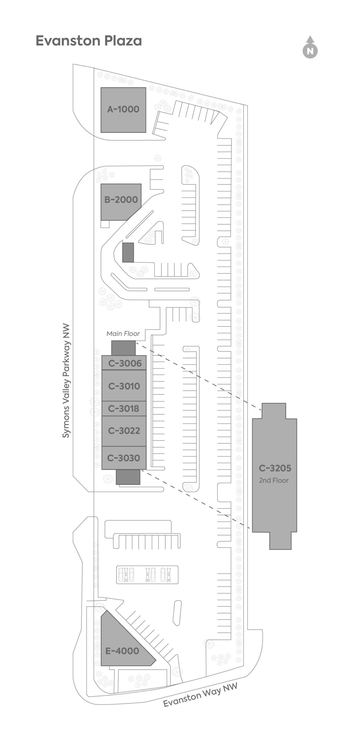
Evanston Plaza

2045 Symons Valley Parkway NW, Calgary, AB

Site Area

3.48 Acres

Rental Rate

Negotiable

Parking Ratio

6/1,000 SF

Gross Building Area

26,248 SF

Additional Rent

$19.20/SF (+ admin fee)

Availability

Fully Leased

A unique neighbourhood shopping centre with excellent exposure along Symons Valley Parkway in Calgary’s developing northwest.

Evanston Plaza is located across from Qualico Properties’ Evanston Towne Centre at the center of the Evanston neighbourhood in northwest Calgary. The centre is home to a large daycare facility, a 7-Eleven with a gas bar, a drive-thru Tim Hortons, and a variety of other shops and services.

Evanston Plaza

No vacancies available

For upcoming availability please contact
andrew.harrison@qualico.com